Zum Hauptinhalt springen
1. Preis

Feuerwehrgerätehäuser in Nürnberg

Typisiertes Gebäudesystem für neue Feuerwehrgerätehäuser der Freiwilligen Feuerwehr
Zuschlag in einem VgV-Wettbewerbsverfahren mit Entwurfsteil

Funktions- und Vereinshaus + Fahrzeughalle + Werkstatt mit Lager und Dachterrasse = Fertig ist die Feuerwehr!


Auslober:

Stadt Nürnberg, vertreten durch WBG KOMMUNAL GmbH


Standort:

Nürnberg-Buch, -Eibach, -Katzwang, -Gartenstadt, -Fischbach und -Laufamholz


Besonderheit der Gebäude

Sechs jeweils passgenaue Feuerwehrhäuser für die Freiwilligen Feuerwehren verschiedener Nürnberger Ortsteile und deren Vereinsleben. Das hierfür entwickelte System von Gebäudetypen kombiniert jeweils drei Baukörper, die sich in ihrer Dimension an die Anzahl der Vereinsmitglieder und Hallenstellplätze anpassen lassen. Durch die zweiseitige Zugänglichkeit des Alarmflurs funktioniert das Gebäude für alle Grundstückszuschnitte. Verortet wird jedes Gebäude durch die ortsbezogene Auswahl von changierenden Ziegelfarben und einem darauf abgestimmten Farbkonzept für die Innenräume. Die Materialität und Farbigkeit der Einfriedungen, Fenster, Böden, Einbauten, Möbel, Leuchten und weiterer Elemente bleibt im Sinne des Modulsystems immer gleich.


Umsetzung

Fertiggestellt: FW Buch, FW Eibach, FW Gartenstadt

In Bau: FW Katzwang

In Planung: FW Fischbach, FW Laufamholz


Verfahren:

VgV-Wettbewerbsverfahren mit Entwurfsteil

Zuschlag:

Januar 2018

Fotos:


Die Komposition der typisierten Gebäudemodule zu einem skulpturalen Ensemble wird durch die homogene Materialität des Backsteins zu einem Gestaltbild, das über die funktionalen Anforderungen einer Feuerwache hinaus geht und zu einem zeitlosen Stadtteilhaus wird.

  • Detailbeschreibung

    Neubau 6 Feuerwehrgerätehäuser für die Freiwillige Feuerwehr Nürnberg
    Entwicklung eines Modulsystems zugunsten von Synergieeffekten für alle Wachen

    Aufgabe. Die neuen Feuerwehrgerätehäuser für die Freiwillige Feuerwehr Nürnberg als Modulsystem entworfen, welches die Anpassung auf die unterschiedliche Anzahl der Feuerwehreinstellplätze und Mitglieder sowie die Anforderungen des Standorts beinhaltet. Zusätzlich wird eine Erweiterung für je einen Stellplatz berücksichtigt.  Weitere Entwurfsparameter sind die Funktionalität und Wirtschaftlichkeit in der Errichtung als auch die Nachhaltigkeit für einen dauerhaft wirtschaftlichen Betrieb und Unterhalt.

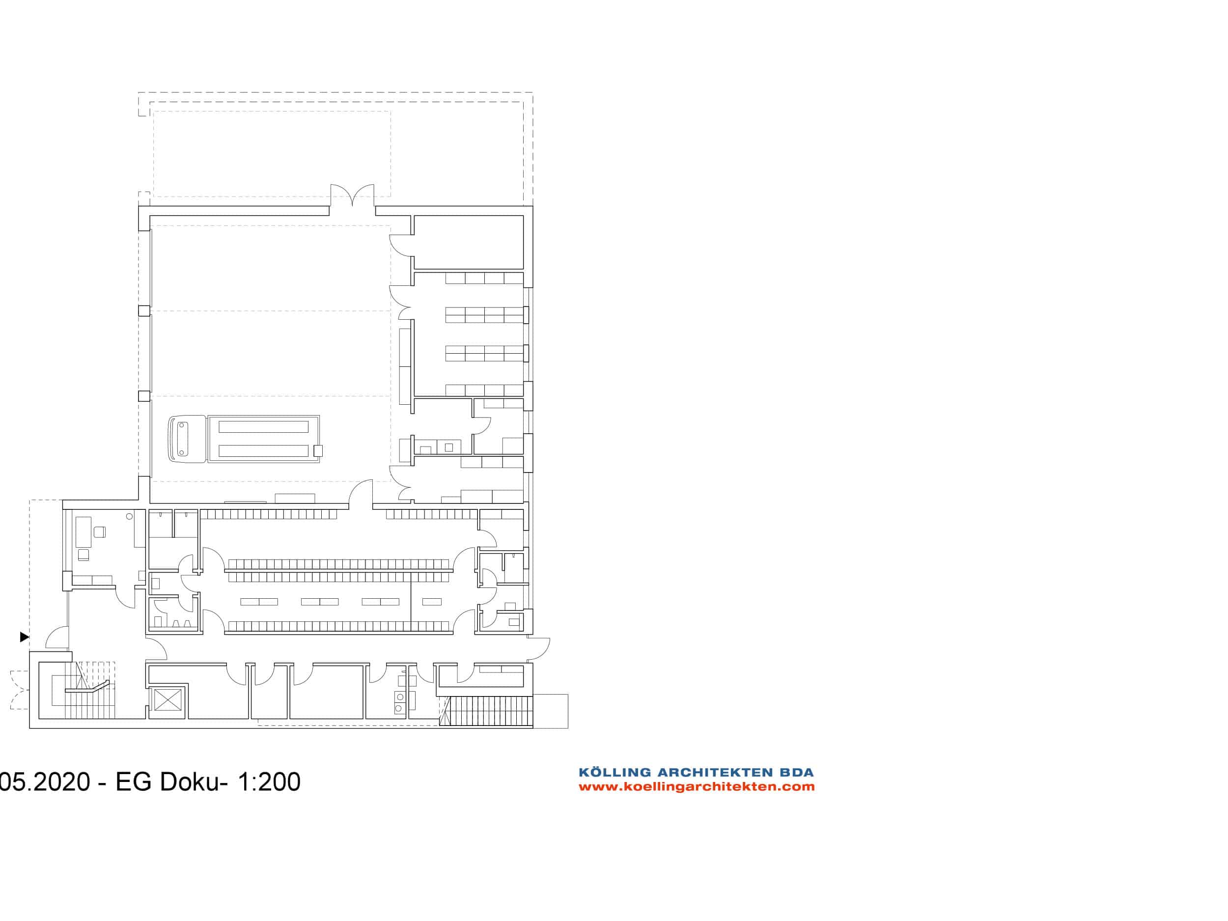
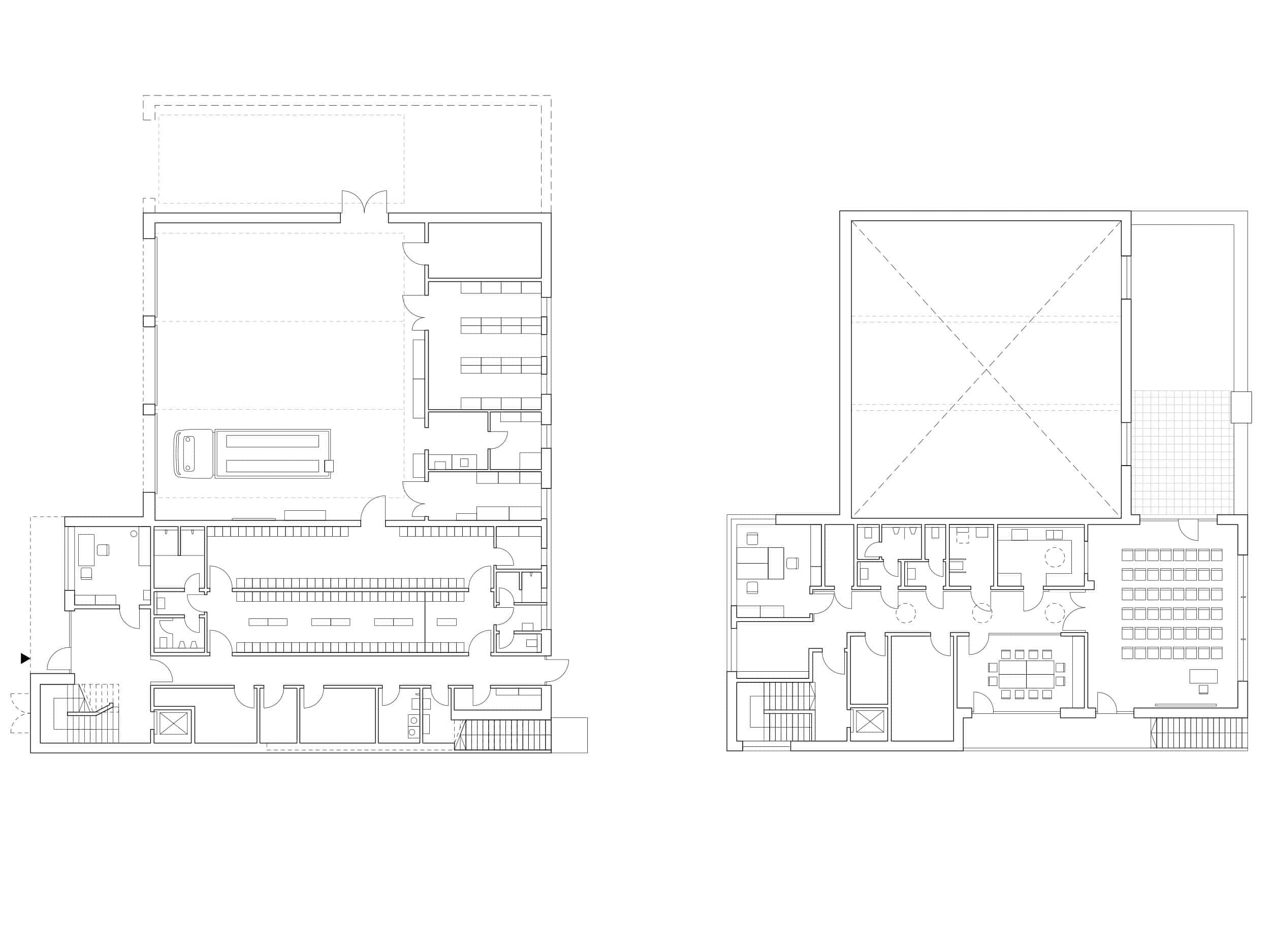
    Modulsystem und Organisation. Das Modulsystem für die geplanten Feuerwehrgerätehäuser wird baulich in drei miteinander zu kombinierende Baukörper übersetzt. Alle Feuerwehrhäuser bestehen jeweils aus einem 2-geschossigen Sozialtrakt, dessen Länge und Platzbedarf an die der Mitgliederzahl der jeweiligen Feuerwache angepasst wird. Dieser ist seitlich an die Fahrzeughalle mit Erweiterungsstellplatz angegliedert.  Im rückwärtigen Bereich der Halle schließt ein eingeschossiger Lager- und Werkstattbereich mit Dachterrasse an die Fahrzeughalle sowie den Sozialtrakt an.
    Die Gebäudekonfiguration mit einem Haupteingang sowie einem zweiten Eingang zum SPA-Flur, gewährleistet die Funktionalität aller sechs Feuerwehrhäuser trotz unterschiedlicher Grundstücks- und Erschließungssituationen. Im EG des Sozialtrakts befinden sich der Umkleide- und PSA-Bereich, der 1. Hilferaum und Technikflächen. Im OG werden die Schulungs-, Büro- und Jugendräume für die theoretische Ausbildung und Vereinsnutzungen, die Küche und WC-Räume angeordnet.

    Architektur und Fassade. Die skulptural ausgebildeten Baukörper mit ihrer Höhenstaffelung und ihren Gebäudeeinschnitten, schaffen eine Bezugnahme auf die bauliche Umgebung der jeweiligen Standorte. Ihre wertigen und nachhaltigen Ziegelfassade gliedern sich durch die Verwendung von changierenden Ziegelfarben im jeweils ortstypische Farbspektrum in das jeweilige Stadtbild ein und werten es auf.

weitere Wettbewerbe